
引言
建筑師是幸運的,可以拿著別人的錢實現自己的夢想;也是痛苦的,各種制約的存在,往往讓夢想實現得不是那么順暢。但是想想唐僧西天取經,容易實現的夢想還能叫夢想嗎?有時候實現夢想的過程才是最值得回味的,最好的風景就在路上。
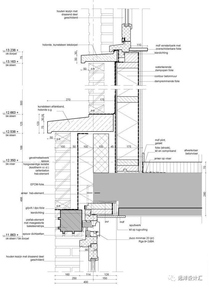
一、施工圖設計是什么 最近幾年房地產市場井噴式發展,建筑師似乎突然都忙了起來,隨著房地產公司的“快周轉”命令下達,“一天出圖”似乎也不是遙不可及,但是我想做為一個經過正規建筑學教育熏陶的建筑師,多多少少都會有一些社會責任感的,有些在心里,有些在行動上,希望自己的作品能讓周圍的世界美好一點,這也許是很多很多建筑師的理想之一。但是有時候忙起來,就跟崔健的歌里唱的“不知不覺掙錢掙暈了把什么都忘了”,忘記了自己的每一筆都是要在大地上矗立百年的,省略了過程,忽略了內心深處的聲音。 具體到建筑設計上,一般大家會認為方案才是設計、才是腦力勞動、才是創造,施工圖只是死板執行規范,機械制圖,體力勞動。特別是在目前的地產行業,方案和施工圖往往是兩個單位完成,施工圖單位就想著按業主方確認的方案做就好了,溝通方案公司改圖還要花時間,花這個時間我圖都出完了,況且設計費也不高,要是能花點時間各專業好好對對圖,業主你就應該多給加幾個雞腿了。但是這樣對嗎? ▲ 施工圖應該用最少的內容表示清楚各種構造 材料以及材料之間的關系 那施工圖設計到底是什么呢?我們可以把施工圖當作一個建筑的施工說明書,是方案與施工單位溝通的媒介,是將方案翻譯成施工單位能夠理解的圖示語言的過程,方案就是這本書的總綱,而施工圖是文章的內容,總綱往往是概括性、理想化的,很多細節上考慮的不完整、不完善也是情有可原,如何通過內容完整的詮釋總綱的精神,不讓讀者,也就是施工單位出現理解的偏差,同時在理解的基礎之上,進一步提升書本的內涵,這只能在正文階段,也就是施工圖階段解決,這不是程式化的機械制圖可以解決的,這是方案落地的重要過程,是需要認真設計的。 ▲ 筆者繪制的某項目花格磚色彩組合施工圖 ▲ 實景照片 二、什么是好的施工圖設計 好的施工圖,絕不僅僅止于在圖面上清晰無誤的表達各種構造、做法,更是需要通過對方案的二次設計,對方案進行完整的詮釋,是方案補短板、去風險、增優化的重要過程。好的施工圖不僅可以幫助方案更好的落地,減少施工過程中的設計變更,更可以助力建筑作品控制風險、提升品質、降低施工難度、減少無效成本,也可以在使用者角度,即使用者眼能及、手能觸的部位,最大程度的體現設計的細節,是對方案理念的完美補充。 而這需要我們施工圖建筑師真正做到匠人匠心,做到“每一寸都有設計”。 三、施工圖的二次設計 筆者在平時工作中接觸了大量的施工圖紙,不同于一般外審機構對規范方面的的審查,以及施工圖設計院內部的“一校三審”制度,除了對合規性和的圖紙錯漏碰缺進行評審,我們主要還是需要站在業主、施工單位與客戶的角度,從控制風險、提升品質以及成本優化等方面對圖紙進行評審,同時在不影響項目進度和品質的前提下提出解決方方案。 以下結合一些在施工圖階段通過二次設計對方案補短板、去風險、增優化的案例,說明施工圖二次設計的重要性與價值所在。 1)補短板:建筑的構造細節,比如室外空調機位、集水坑、雨落管、幕墻分縫等部位都是方案容易忽略,但對建筑的立面、室內效果、使用者的感受都有較大的影響的部位,這些都需要施工圖階段充分考慮解決。 ● 此項目大堂為精裝修設計,但消防電梯的集水坑都設置在大堂內部,圖紙設計從設備和結構專業角度來說沒有問題,排水路由短,合理、合規,也避開了結構承臺,可謂很舒服,但建筑專業作為龍頭專業,只簡單將其他專業的要求反映在圖紙上,沒有考慮集水坑的實際實施效果對后期裝修、客戶感受的影響,如照此實施,集水坑蓋板及配套的排污立管、閥門、配電箱對后期入戶大堂裝修影響極大,后期精裝要付出很大的代價,還不見得能達到想要的效果(一般集水坑實際效果見照片)。 我們修改建議是將集水坑挪到剪刀梯下,位置隱蔽,對公共區域的影響也能降至最小。 ● 這是一個很常規的底商屋頂平面圖,施工圖單位還很細致的設置了混凝土墩,標示出了商鋪空調室外機的位置,但是要是建筑師是二層的住戶,會喜歡這樣的房子嗎?前后被空調室外機包圍,視線及噪聲的干擾另說,還時不時會有檢修空調的工人在房子前后出入,對住戶隱私有很大的干擾。最后的修改建議是將室外機放置在商鋪靠小區一側墻面上進行安裝,同時用百葉進行遮擋,不影響商鋪的主立面,也便于檢修,同時對住戶的干擾降至最小。 ● 從以上例子可以看出,畫施工圖的建筑師不光是要合理綜合的各專業需求,還要真正起到專業龍頭的設計作用,要關注細節,對最后完成的效果有一定的預判能力,需要合理設計,了解其他專業特點,協調其他專業,以呈現最好的效果。畫圖時候多思考兩分鐘,可能就會給業主方避免很大的經濟與時間損失,也能減少不少工程的遺憾。先思考,不要把自己的位置降低,才能得到大家的認可和尊重。 2)去風險:方案一般只注重大效果,而具體到戶與戶之間的關系等較為細節的問題往往容易忽略,但因為往往涉及到隱私、安全等問題,這些都需要在施工圖階段解決。 ● 這是兩個毗鄰的戶型,光從圖紙來看,質量還是不錯的,表達清晰明確,還考慮到了標注分戶空調的豎向隔板,但是仔細一看,開敞陽臺間距就一米,中間還有結構連梁,室外空調機位百葉向外開啟,兩戶的空調檢修都要爬到連梁上開啟百葉進行操作,這是鼓勵兩家串門增加互動?顯然存在較大的對視及攀爬問題,影響毗鄰戶型的私密性及安全性。我們最后提出的解決方案是在虛線部位增設磨砂玻璃,同時在兩戶陽臺內增設空調檢修門。 ● 這是一個豪宅圖紙,設計費很高,外方圖紙相當細致,但是細節之處有很多考慮欠妥之處,比如下圖,因為立面的原因,馬桶外直接為落地玻璃,且衛生間毗鄰主要入口,直接對著主入口院子,第一次提出建議,外方提出開啟扇下部固定扇改為磨砂玻璃,但是也較為不妥,因為夜晚衛生間內部亮燈時也會有人影可見,我們最后建議在玻璃內側設置能夠遮蔽視線的實體窗臺,或采用不透光的背漆玻璃進行視線遮擋。 建筑師也是用戶,如果建筑師從用戶角度換位思考,設身處地的站在別人的角度想一想,就不會出現此類明顯不合理的問題,發現問題了,通過合理的設計去解決方案階段沒有考慮到的問題,是否也能體現出施工圖建筑師的價值所在呢,解決這些非常細節的問題,也不增加圖紙的工作量,既然都做了,為什么不做到最好? 3)增優化:如果涉及到住宅、公寓等產品,各種尺寸往往是需要分毫必爭的;做法、構造也應該做到合理有效,方案往往不會對具體的墻體、開門等細部以及具體的構造做法進行設計,這也是施工圖階段應該考慮的問題。 ● 這是一個住宅的剪刀梯,似乎沒有問題,但仔細一看,左邊的樓梯前室應該4平米就夠,似乎大了點,另外門是不是可以和剪刀梯右邊的門一樣設置呢,這樣前室又能多一些面積,多出的面積為什么不給左邊的住戶呢?于是稍微調整一下,發現如果將多出的面積給左邊的住戶,剪刀梯的墻體可以向右邊移動500mm,半米啊!這個小廚房可以放下一個雙開門冰箱了,完全是質的改變。 ▲ 原始平面 ▲ 修改后平面 ● 這是一個地下室頂板防水做法,防水層做法采用“4厚SBS耐根刺防水卷材+2厚聚合物水泥防水涂料”,似乎比較合理,“耐根穿刺卷材+皮膚式防水”的做法,滿足一級防水要求同時采用JS聚合物水泥防水涂料成本還比較低,而且防水涂料作為皮膚式防水效果還好,給甲方考慮得很周到,相當極致節約成本了。 但是仔細看就有些問題了,首先兩種材料一種屬于瀝青基材料,一種是以有機高分子聚合物作為主要基料,屬于不同材質,材性無法匹配且不相容。另外,下層的聚合物水泥中的有效防水物質是有機高分子聚合物乳液,會在高溫下失效,而SBS耐根刺防水卷材需要熱熔施工,因此會對下層的聚合物水泥防水涂料造成破壞,造成防水失效。我們建議把下面的JS聚合物水泥防水涂料改成非固化橡膠瀝青防水涂料,雖然增加少許成本,但能解決相容與高溫失效的問題,真正起到一道防水的作用。 ▲ 原做法 ▲ 防水廠家出具的說明文件 在目前住宅高單價的情況下,尺寸可謂分毫必爭,增加300或者500的開間,有時就能讓住戶的居住品質有質的提升。對建筑師來說,有些冗余是沒有錯的,但站在客戶或者建設方的角度,這是極大的面積損失,這需要建筑師在施工圖階段細致的設計以及對規范下限的熟練掌握。同時,能讓各種材料恰當合理的使用,呈現出項目想要的效果,這也是設計。 對材料的了解與掌握也應該是施工圖建筑師的基本功,材料、構造的問題不是實時顯現的,而錯誤是可以復制的,如果一次錯誤沒有被發現,若干年后呈現出來不好的后果,而此時錯誤的做法已經復制到很多項目上,只能補救,這是不是對自己項目的最大不負責任?節約成本不代表希望無效成本,誰都不希望有這種結果吧。 四、施工圖建筑師能做什么 以上都是隨便選取的幾個例子,對繪制施工圖的建筑師來說可能都是習慣使然、順手為之。就和前一段時間北京大學景觀設計學研究院副院長李迪華的文章《經過幾十年的城市建設,我們終于變得寸步難行》描述的一樣,沒有經過設計、仔細斟酌的各種不合理也我們居住的環境充滿了遺憾。 ▲ 李院長文章案例 結合目前上海、深圳市開展的工程總承包企業編制施工圖設計文件試點,施工單位都可以畫施工圖了,從邏輯上分析,施工單位比施工圖設計院有錢、有大量的配套廠家資源、懂工程、懂施工、有成本意識,而且為了減少后期維護的投入與風險,有優化施工圖、提高工程效率的意愿,而這些都是施工圖設計院所缺乏的。 如果施工圖設計院還是停留在機械的翻方案圖上,設計人員自甘成為畫圖流水線上的“工人”,不去主動了解工程、客戶、材料、成本,“閉門造車”的結果只會是最后的圖紙漏洞百出,讓施工單位頭疼不已,讓建設單位不斷超支,靠著幾個圖章和政策保護生存的勞動密集型產業是無法長久的。 ▲ 八十年代的施工圖工作室 ● 可以想見未來,沒有工程、成本、用戶思維,在施工圖階段主動對方案進行二次設計的建筑師是沒有什么出路的。通過施工圖階段的二次設計,施工圖可以真正起到方案與實施過程的無縫對接作用,讓建筑師的方案不再走樣,成本不再超支,有更高的完成度,這是施工圖的意義所在。 五、結語 每一個建筑師都希望給自己的作品沒有遺憾,這需要極致的用心,用好施工圖二次設計這個工具,同時建立在經驗的積累與標準化基礎之上,是完全可以實現的,對住宅類等功能相對簡單的項目,通過標準化的抓手,完全可以做到固化一些好的做法、好的細節,而且高質量的施工圖,可以減少施工圖建筑師的現場溝通時間,減少設計變更,對提高設計工作的總體效率還是有所促進的,工作效率的提高意味著建筑師的單位產出的提高,收入也會隨之提高,這從理論上是可以實現良性循環的。 不管在歐美還是日本,我們都可以看到很多背景化的建筑,很平常,但所有的細節值得回味,平常的建筑也能體現設計的價值,實現參與其中的人們的理想。拿來就干、經驗主義、自我中心的建筑師們是不是需要認真的進行一下反思? ▲ 美國隨拍 讓我們周圍的世界變得美好一點,到老了可以帶著小孩自豪的說這是我們的作品。這時代給了建筑師、給了我們房地產從業者太多的機會,希望我們都能不忘初心,雖有遺憾,但是幸好,我們還有未來。 來源:遠洋設計匯(ID:Sinooceanland-Design),如有侵權,請聯系刪除。
















